معماران معاصر ایران, اتووود - بزرگترین سایت معماری
ثبت نام عضو جدید ایمیل آدرس: رمز عبور : رمز عبور را فراموش کردم

به جامعترین سامانه ارتباطی و اطلاع رسانی معماران معاصر ایران خوش آمدید خانه |  ثبت نام |  تماس با ما |  درباره ما |  قوانین سایت |  راهنما |  تبلیغات




موضوعـات مــعـماری
معماری و دیگر حوزه های فکر   - 1726
سینما ـ طراحی صحنه ـ معماری   - 16
منظر شهری   - 1598
رابرت ونتوری در بیست و پنج روایت   - 15
طراحي داخلي   - 1172
اینستالیشن های شهری   - 15
نظریه معماری   - 1136
معماری خاورمیانه   - 15
سازه های شهری   - 1084
شهرهای در حرکت   - 15
تکنولوژی ساخت   - 1076
مسابقه مرکز اجتماعی شهر صدرا   - 15
معماری حوزه عمومی   - 1070
معماری بایومورفیک   - 15
مرزهای معماری   - 1057
ویلا ساوا ـ لوکوربوزیه   - 14
نگاه نو به سكونت   - 923
معماری و دشت   - 13
المان شهری   - 869
معماری و غذا   - 13
نظریه شهری   - 839
فیلم پارازیت ساخته بونگْ جونْ هو   - 13
معماری و سیاست   - 806
معماری و جنگ   - 11
معماری مدرن   - 776
ده کتاب که هر معمار باید بخواند   - 11
معماری پایدار   - 751
معماری خوانی   - 10
کلان سازه   - 734
ده پروژه کمتر شناخته شده لوکوربوزیه متقدم   - 10
روح مکان   - 678
کنگو کوما ـ استادیوم ملی توکیو   - 10
آینده گرایی   - 674
کلیسای رونشان ـ لوکوربوزیه   - 10
معماری منظر   - 637
بی ینال ونیز   - 10
برنامه ریزی شهری و منطقه ایی   - 627
درس گفتارهای اتووود   - 10
آرمان شهرگرایی   - 593
معماری و انسان شناسی   - 10
طراحی صنعتی   - 582
فمینیسم   - 10
معماری تندیس گون   - 571
معماری آمریکای جنوبی   - 9
توسعه پایدار   - 570
معماری و فضای زیرساخت های نرم   - 9
منتقدان معماری   - 560
اتوره سوتساس به روایت آلیس راستورن   - 9
معماری شمایل گون   - 559
مسابقه دانشجویی اتووود ـ دوردوم. مسابقه دوم   - 9
نوسازی و بهسازی بافت های شهری   - 548
ده زن برتر تاریخ معماری مدرن   - 9
معماریِ توسعه   - 525
لیوینگ آرکیتکچر   - 9
باز زنده سازی   - 497
معماری تخت جمشید   - 8
هنر مدرنیستی   - 437
شهرسازی کوچک مقیاس   - 8
معماری یادمانی   - 393
معماری بلوک شرق ـ جهان در حال محو شدن   - 8
طراحی نئولیبرال   - 391
شارلوت پریاند به روایت آلیس راستورن   - 8
معماری سبز   - 386
مسابقه دانشجویی اتووود ـ دوردوم. مسابقه اول   - 8
تغییرات اقلیمی   - 376
تز 1400   - 8
معماری ارزان   - 365
جنتریفیکیشن   - 7
تراشه های کانسپچوال   - 359
طراحی و ضایعات به روای آلیس راستورن   - 7
معماری پست مدرن   - 353
ردلف شیندلر به روایت الیس راستورن   - 7
معماری محدود   - 335
گونتا اشتلزل به روایت آلیس راستورن   - 7
بنای محدود   - 327
مینت د سیلوا به روایت آلیس راستورن   - 7
گرمایش زمین   - 320
جنبش "جانِ سیاهان مهم است" و مسئله‌ی طراحی به روایت آلیس راستورن   - 7
معماری محلی   - 309
ریچارد نویترا به روایت آلیس راستورن   - 7
اتووود کلاسیک   - 305
طراحی در زمانه بحران به روایت آلیس راستورن   - 7
محوطه سازی   - 298
کارلو اسکارپا به روایت آلیس راستورن   - 7
معماری تجربی   - 286
عبور از مرحله جنینی   - 7
کتابخانه ی اتووود   - 278
آلوار و آینو آلتو به روایت آلیس راستورن   - 7
بدنه سازی شهری   - 277
هشت کوتاه نوشته در مورد پوپولیسم   - 7
معماری انتقادی   - 277
طراحی و پناهجویان   - 7
اقتصادِ فضا   - 276
آیلین گری به روایت آلیس راستورن   - 7
معماری ـ سینما   - 275
باوهاوس به روایت آلیس راستورن   - 7
زنان و معماری   - 255
لوسی رای به روایت آلیس راستورن   - 7
فضای منفی   - 255
مارسل بروئر به روایت آلیس راستورن   - 7
عکاسی   - 246
چارلز رنه مکینتاش به روایت آلیس راستورن   - 7
مسکن حومه شهری   - 237
باکمینستر فولر به روایت آلیس راستورن   - 7
معماری های تک   - 235
طراحی در بازی و تاج و تخت به روایت آلیس راستورن   - 7
هنر انتزاعی   - 229
سائول باس به روایت آلیس راستورن   - 7
گرافیک   - 220
میس ون در روهه به روایت آلیس راستورن   - 7
مسکن عمومی   - 210
معماری و عکاسی به روایت آلیس راستورن   - 7
طراحی مبلمان   - 209
طراحی روی بام به روایت آلیس راستورن   - 7
معماری و فاجعه   - 205
پاویون ایران ـ بی ینال ونیز 2016   - 7
معماری فضای داخلی   - 193
رقابت مجتمع چندعملکردی شهید کاظمی قم   - 7
معماری و رسانه   - 190
معماری مصر   - 7
معماری ژاپن   - 181
منبع شناسی اتووود   - 7
مسکن روستایی   - 181
صد و بیست و یک تعریف معماری   - 6
پروژه های دانشجویی از سراسر جهان   - 178
پنج پروژه لوکوربوزیه متاخر که هیچگاه ساخته نشدند   - 6
ترسیمات معماری   - 173
مسابقه ویلا 1400   - 6
معماری ایران   - 169
فرایند تکامل معماری مدرن هند   - 6
هنر گفت و گو   - 165
ورنر پنتون به روایت آلیس رستورن   - 6
بلندمرتبه ها   - 140
معماری پساصنعتی   - 6
اتووود ـ ایران معاصر   - 123
ده پرسش از دو معمار   - 6
معماری کوچک مقیاس   - 114
زنان، آشپزخانه، مقاومت   - 5
ویرانه ها   - 107
سایبورگ   - 5
معماری آسیا   - 106
معماری استرالیا   - 5
مدرنیته؛ از نو   - 101
تناقض هاوپیچیدگی ها:تئوریهای پیچیدگیِ ونتوری وجیکوبز   - 5
معماری چین   - 100
اکنی استودیو   - 5
معماری اروپا   - 97
گزارش فرانسویِ وس اندرسون   - 5
معماری مذهبی   - 90
کتاب هایی در باب یوتوپیا   - 5
معماری فاشیستی   - 89
رادایکالیسم ایتالیایی در سیزده روایت   - 5
معماران و چالش انتخاب معماری   - 87
چهار یادداشت برای علی اکبر صارمی   - 4
معماری جنگلی   - 86
اتومبیل در چهار روایت کوتاه از بری ریچاردز   - 4
اکسپو   - 85
بلوپرینت   - 4
معماری پراجکتیو   - 81
اتووودْ آبزرور   - 4
گفت و گو با مرگ   - 81
شهر ژنریک و نامکان ها   - 4
ویروس کرونا و معماری   - 80
اکسپوی دبی. 2020   - 4
فیلوکیتکت   - 79
چالش های اخلاقی ریاضت ورزی در معماری به روایت پیر ویتوریو آئورلی   - 4
معماری و هنر انقلابی   - 79
چگونه یوتوپیا در روسیه انقلابی مدفون شد   - 4
جهان علمیْ تخیلی   - 77
فرایند خلاقیت چهار پیشگام معماری مدرن   - 4
معماری دیجیتال   - 75
همه ما سایبورگ هستیم   - 4
معماری هند   - 70
فرهنگ کمپ به روایت سوزان سانتاگ   - 4
پالپ نیوز ِ اتووود   - 68
اختلال های تشخیصی معماران مدرن   - 4
بحران آب   - 66
سایبرنتیک   - 4
مدارس معماری   - 65
معمای حبابی   - 4
طراحی مُد   - 63
متاورس   - 4
معماری و نقاشی   - 61
مدرنیسم هیپی   - 4
پداگوژی   - 60
معماری آفریقا   - 3
معماری و روانشناسی   - 59
معماری مدارس   - 3
معماری و رنگ   - 58
اتووودْ باکسْ آفیس   - 3
زاغه نشینی   - 57
سایبرفمینیسم   - 3
آنتروپوسین   - 56
داریوش شایگان و هنر ایرانی   - 3
معماری و هوش مصنوعی   - 55
باشگاه مشت زنی   - 3
معماری بیابانی   - 55
بازپس گیری حریم خصوصی مان به روایت آنا وینر   - 3
معماری و ادبیات   - 55
ژان بودریار؛ شفافیت، ابتذال و آلودگی رابطه   - 3
معماری و آب   - 54
اندیشیدن از مجرای پاسخ های کووید 19 با فوکو   - 3
معماری کانستراکتیویستی   - 54
فیلم پدر ساخته ی فلوریان زلر   - 3
معماری اوایل قرن بیستم روسیه   - 47
شش پروژه شاخص معماری پست مدرن   - 3
هنر روسیه   - 45
رقابت آسمانخراش ایوُلو 2016   - 3
جنبش متابولیسم   - 45
آینده کجاست؟ روایتی از رولینگ استون   - 3
معماری و گیم   - 45
لویی کان به روایت آلیس راستورن   - 2
طراحی در وضعیت پندمیک به روایت آلیس راستورن   - 45
اسمیتسن‌ ـ رابین هود گاردنز   - 2
باهاوس   - 44
کودتایی که در مورد ان صحبت نمی کنیم   - 2
معماری و سلامت   - 37
فیلم های اتووود   - 2
درگذشت زاها حدید   - 35
یوتوپیاهای سیاره ای . نیکیتا داوان با آنجلا دیویس و گایاتری اسپیواک   - 2
طراحی پارامتریک   - 35
تعییرات زیست محیطی ـ انقلاب یا انهدام   - 2
معمارْستاره ها به روايت اتووود   - 34
جودیت باتلر مارا به تغییر شکل خشم مان فرا می خواند؛ گفت و گویی با ماشا گِسِن   - 2
معماری آمریکا   - 34
برج سیگرام چگونه جهانی شد؟   - 2
اکسپو شانگهای 2010   - 33
زیستْ ریاضت و همبستگی در فضای اضطراری   - 2
معماری مجازی   - 31
فیس بوک، گوگل و عصر تاریک سرمایه داری نظارتی   - 2
پاویون های سرپنتین   - 29
شهرهای پیشاصنعتی   - 2
اکسپو میلان 2015   - 28
رابرت نوزیک، یوتوپیا و دولت حداقلی   - 2
معماری و کوه   - 27
نمایش های مد پرادا   - 2
طراحی جزییات   - 27
معماری و کودک   - 2
معماری پس از یازدهم سپتامبر   - 25
مطالعات پسااستعماری   - 2
معماری؛ خیر مشترک و امید اجتماعی   - 24
معماری و ورزش   - 2
جشن نامه اتووود   - 21
معماری برزیل   - 1
زاها حدید از نگاه معماران ایرانی   - 21
معماری به مثابه منظر   - 1
معماری و آسمان   - 21
شهرسازی داخلی   - 1
زنانِ معمارِ ایرانی و سقف شیشه ای در نوزده روایت   - 20
دوازده متفکر فمینیست و معماری   - 1
فرهنگ نفت   - 19
ان اف تی   - 1
معماری ـ موسیقی   - 19
فیلمْگفتارهای معماری و پداگوژی معماری   - 1
شانزده کتاب برای ورود به جهان اِی آی و عصر آنتروپوسین   - 19
تابْ آوری دفاتر نوپای معماری   - 1
پداگوژی انتقادی   - 19
پیتر آیزنمن و خانه شماره یک به روایت روبرت سومول   - 1
سینما به ترتیب الفبا به روایت هاوارد سوبر   - 18
ده پرسش از هشت معمار   - 1
پردیس ویترا   - 18
چهل نکته در باب هایدگرْخوانی   - 1
20 بنا که هرگز ساخته نشد   - 17
شهرْخوانی با اتووود   - 1
کارگاهْ مسابقه قوام الدین شیرازی   - 16

طــراحــــــــــــــان
آر ای ایکس   - 3
زاها حدید   - 197
آراتا ایسوزاکی   - 17
زیگموند فروید   - 19
آرشیگرام   - 8
ژان بودریار   - 11
آرکی زوم   - 6
ژان نوول   - 22
آلبرت پوپ   - 4
ژاک دریدا   - 19
آلدو روسی   - 15
ژاک لوگوف   - 4
آلفرد هیچکاک   - 5
ژیل دلوز   - 34
آلوار آلتو   - 19
سائول باس   - 7
آلوارو سیزا   - 9
ساسکیا ساسن   - 9
آن تینگ   - 4
سالوادور دالی   - 2
آنتونی گائودی   - 28
سانا   - 5
آنتونی وایدلر   - 5
سانتیاگو کالاتراوا   - 14
آنتونیو نگری   - 6
سدریک پرایس   - 3
آنسامبل استودیو   - 2
سو فوجیموتو   - 18
آنیش کاپور   - 8
سوپراستودیو   - 9
آی وِی وِی   - 34
سورِ فِهْن   - 6
آی/ تری   - 2
سوزان سانتاگ   - 10
اُ ام اِی   - 61
شاشونا زوبوف   - 4
اتوره سوتساس   - 8
شیبیک و کریستوف   - 2
ادریان لابوت هرناندز   - 5
شیگرو بان   - 34
ادوارد برتینسکی   - 2
عبدالعزیز فرمانفرمایان   - 4
ادوارد سعید   - 19
فدریکو بابینا   - 30
ادوارد سوجا   - 10
فرانک گهری   - 50
ادواردو سوتو دی مُرِ   - 18
فرانک لوید رایت   - 45
ادولف لوس   - 9
فرای اوتو   - 10
ارو سارینن   - 30
فردا کولاتان   - 2
اریک اوون موس   - 14
فردریک جیمسون   - 4
اریک هابسبام   - 2
فرشید موسوی   - 3
استن آلن   - 4
فمیهیکو ماکی   - 4
استیون هال   - 32
فیلیپ جنسن   - 7
اسلاوی ژیژک   - 18
گابریل کوکو شنل   - 2
اسنوهتا   - 7
گایاتری چاکراوارتی اسپیواک   - 8
اسوالد متیوز اونگرز   - 7
گرگ لین   - 7
اسوتلانا بویم   - 5
گونتا اشتلزل   - 1
اسکار نیمایر   - 39
لئوپلد بانچینی   - 2
اف او اِی   - 9
لئون کریر   - 2
ال لیسیتسکی   - 5
لبس وودز   - 26
الیس راستورن   - 112
لوئیس باراگان   - 2
اِم اِی دی   - 25
لوئیس مامفورد   - 1
ام وی آر دی وی   - 74
لودویگ لئو   - 3
اماندا لِــوِت   - 4
لودویگ میس ون دروهه   - 29
اورهان پاموک   - 4
لودویگ هیلبرزیمر   - 4
اویلر وو   - 9
لودویگ هیلبرزیمر   - 1
ایال ویزمن   - 1
لوسی رای   - 15
ایلین گری   - 9
لویی کان   - 39
ایوان لئونیدوف   - 4
لوییجی مورتی   - 1
بئاتریس کُلُمینا   - 10
لوییس بورژوا   - 8
بال کریشنادوشی   - 4
لُکُربُزیه   - 153
باک مینستر فولر   - 13
لیام یانگ   - 4
برنارد چومی   - 36
لینا بو باردی   - 4
برنارد خوری   - 2
مارتین هایدگر   - 32
برنو زوی   - 7
مارسل بروئر   - 7
بنیامین برتون   - 8
مارشال برمن   - 16
بوگرتمن   - 1
مانفردو تافوری   - 16
بی یارکه اینگلس   - 69
مانوئل کاستلز   - 3
پائولو سولری   - 4
ماکسیمیلیانو فوکسِس   - 10
پائولو فریره   - 2
مایکل سورکین   - 4
پاتریک شوماخر   - 3
مایکل گریوز   - 6
پال گلدبرگر   - 1
محمدرضا مقتدر   - 4
پرویز تناولی   - 2
مخزن فکر شهر   - 1
پری اندرسون   - 3
مـَــس استودیو   - 3
پل ویریلیو   - 28
معماران آر سی آر   - 5
پیتر آیزنمن   - 59
معماران مورفسس   - 16
پیتر برنس   - 5
موریس مرلوپنتی   - 2
پیتر زُمتُر   - 69
موشه سفدی   - 12
پیتر کوک   - 10
میشل سر   - 3
پیر بوردیو   - 5
میشل فوکو   - 59
پییر ویتوریو آئورلی   - 14
نائومی کلاین   - 5
تئودور آدورنو   - 7
نورمن فاستر   - 36
تادو اندو   - 13
نیکلای مارکوف   - 1
تام مین   - 13
هانا آرنت   - 10
تام ویسکامب   - 10
هانری لفور   - 24
تاکامیتسو آزوما   - 3
هانی رشید   - 5
توماس پیکتی   - 5
هرزوگ دی مورن   - 31
توماس هیترویک   - 31
هرنان دیاز آلنسو   - 18
تیتوس بورکهارت   - 2
هنری ژیرو   - 3
تیموتی مورتُن   - 2
هنریک وایدولد   - 1
تیو ایتو   - 25
هنس هولین   - 5
جاشوا پرینس ـ رامس   - 2
هوشنگ سیحون   - 14
جان برجر   - 2
هومی بابا   - 2
جان هیداک   - 8
واسیلی کاندینسکی   - 2
جف منن   - 2
والتر بنیامین   - 30
جفری کیپنس   - 3
والتر گروپیوس   - 18
جورجو آگامبن   - 8
ورنر پنتون   - 5
جوزپه ترانی   - 2
ولادیمیر تاتلین   - 13
جولیا کریستوا   - 2
ولف پریکس   - 1
جونیا ایشیگامی   - 8
ونگ شو   - 8
جیمز استرلینگ   - 1
ویتو آکنچی   - 12
جین جیکوبز   - 2
ویوین وست وود   - 6
چارلز جنکس   - 7
ک. مایکل هیز   - 2
چارلز رنه مکینتاش   - 7
کارلو اسکارپا   - 13
چارلز کوریا   - 15
کازو شینوهارا   - 2
چاینا میه ویل   - 4
کازیو سجیما   - 2
حسن فتحی   - 6
کالین روو   - 1
حسین امانت   - 3
کامران دیبا   - 13
خورخه لوئیس بورخس   - 2
کامرون سینکلر   - 11
داریوش آشوری   - 1
کریستفر الکساندر   - 2
داریوش شایگان   - 13
کریستین نوربرگ ـ شولتز   - 15
دانیل لیبسکیند   - 24
کریم رشید   - 5
دنیس اسکات براون   - 10
کلر استرلینگ   - 2
دورته مندروپ   - 3
کلود پَره   - 3
دیلرـ اِسکـُـفیدیو+رِنفرو   - 23
کنت فرمپتن   - 14
دیوید رُی   - 2
کنزو تانگه   - 10
دیوید گیسن   - 2
کنستانتین ملنیکف   - 3
دیوید هاروی   - 25
کنگو کوما   - 47
رابرت نوزیک   - 2
کوپ هیمِلبِلا   - 23
رابرت ونتوری   - 32
کورنلیوس کاستوریادیس   - 3
رُدولف شیندلر   - 7
کوین لینچ   - 7
رضا دانشمیر   - 5
کیانوری کیکوتاکه   - 1
رم کولهاس   - 119
کیتیو آرتم لئونیدویچ   - 1
رنزو پیانو   - 34
کیشو کـُـروکاوا   - 8
ریچارد مِیر   - 8
یان گِل   - 9
ریچارد نویترا   - 7
یو ان استودیو   - 32
ریموند آبراهام   - 1
یورگن هابرماس   - 15
رینر بنهام   - 2
یورن اوتزن   - 1
رینهولد مارتین   - 5
یونا فریدمن   - 5
ریکاردو بوفیل   - 7
یوهانی پالاسما   - 12

کـاربـــــــری هـا
مسکونی   -880
گالری   -97
زیرساخت های شهری   -479
هتل   -84
فرهنگی   -387
ورزشی   -70
پاویون   -307
حمل و نقل عمومی   -39
موزه   -273
بیمارستان و داروخانه و کلینیک   -38
اداری ـ خدماتی   -256
ویلا   -28
تفریحی   -194
مجموعه های مسکونی   -10
مسکونی ـ تجاری   -173
زاغه نشینی   -6
اموزشی   -159
سرویس بهداشتی عمومی   -5
صنعتی   -116
عناصر یادمانی شهری   -5
معماری مذهبی   -108
تجاری   -3
حامی اتووود
مقـــــــــــالات
    دیوید هاروی و شهر در قامت فهمی انسانْ تولید
        آرش بصیرت "سردبیر اتووود"
    پهنه ی معلق تهران؛ شاه عبدالعظیم یا شهر ری
        علی رنجی پور
    دیوید هاروی و شهرســــــــــــــــــــــــــــــــــازی آلترناتیو
        آرش بصیرت "سردبیر اتووود"
    هنر گفت و گو ـ جان بریسندن و اد لوییس با دیوید هاروی
        آرش بصیرت "سردبیر اتووود"
چنـــــد پــــروژه
مجموعه مسکونی شاه پریان
طراح : علیرضا امتیاز "مدیر اتووود"
منزل شخصی دکتر دلیر - خیابان ولیعصر کوچه 8
طراح : محمود امیدبخش
مجموعه ي تجاري و پاركينگ طبقاتي شقايق
طراح : امين حشمتی
خانه شعر ، پايان نامه معماري كارشناسي ارشد
طراح : م معيت
گذرگاه همیابی
طراح : محمود امیدبخش
کاریــــــــــــابی
   کاریابی
   لیست درخواست ها ی قبلی شما
   لیست کاندیدها به تفکیک استان
   لیست فرصت های کاری به تفکیک استان
وبـــــلـاگ هـــــا
آرشیتکت نمونه
مدیر : مسعود زمانیها
معماری به مثابه ساخت-سجاد نازی
مدیر : سجاد نازی
فتوت نامه معماران
مدیر : اخوان الصفا
مجله معماری Architecture Foolad City
مدیر : مسعود پریوز
معــــرفی کتــــــاب
رهیافت پدیدارشناسی در اندیشه پیتر زومتور
نویسنده :  .
انتشارات : علم معمار

حامی اتووود
 رسانه ی تخصصی معماری و شهرسازی میم زون
خانه ی ساحلی از معماران هربست ؛ تنوع بصری در حجم و چشم انداز
اتووود سرویس خبر:   ندا باقری "دبیر تحریریه اتووود"
1393/11/27
مـنـــــــبـع : www.designboom.com
تعداد بازدید : 4495

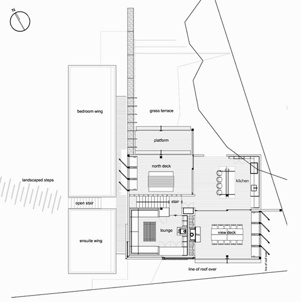
در نیوزیلند، دفتر معماری هربِست، یک خانه ی ساحلی را که مشرف به منطقه ی وانگارِی می باشد را به اتمام رسانده است. این خانه ی مسکونی، که "خانه سنگ قلعه" نام گرفته از ترکیب قطعاتی تکه تکه ساخته شده است که حجمی منسجم را تشکیل می دهند که به نظر می رسد در بالای صخره های رو به دریا، در حال جست و خیز می باشد.

محل اقامت زندگی اصلی در بالاترین سطح قرار گرفته است و شامل یک آشپرخانه با پلان باز می باشد که به تراسی در اتصال با سالنی رو به دریا مرتبط شده است. بخش استراحت خانه در سطح پایین تر قرار گرفته است و از دو اتاق خواب بزرگ در کنار یک سالنی شبیه به خوابگاه تشکیل شده است که می تواند پذیرای چهار مهمان اضافی نیز باشد.

.


.


.


.


.


.


.


.


.


.




حامی اتووود
نظـــــــر اعضــــــــا
هنوز نظری برای این خبر ثبت نشده است.

ثبــــــــت نظـــــــر

 
جهت ارسال نظر باید وارد سیستم شوید. / عضو جدید
ایـمـــیـل :
رمز عبـور :

کلایو مک کارتی; باززایی یک خانه/ گالری از دل کارگاهی صنعتی
تراشه های کانسپچوال ـ جان برجر و هستی شناسی خانه به مثابه ثقلِ پدیداری امر واقع
پروئیت ایگو و مرگ معماری مدرن به روایت چارلز جنکس
فرانک گری، آنگونه که تاکنون دیده نشده است ـ بخش دوم
خانه اِن؛ حجم از درون تهی مدرن و پردازش پوسته ایی پسامدرن
درباره معماران معاصر ایران :
این گروه در سال 1386 با هدف ایجاد پل ارتباطی بین معماران ایرانی معاصر گرد هم آمد.با شروع کار این وب سایت معماران متقاضی در محیطی ساده وکارآمد به تبادل پروژه ها ومقــــالات خود خواهند پرداخت ودر فضای فروم به بحث وگفتگو می پردازند.
خانه | ورود | ثبت نام | درباره ما | تماس با ما | قوانین سایت | راهنما | تبلیغات
© کلیه حقوق این وب سایت متعلق به گروه معماران معاصر می باشد.
Developed by Tryon Software Group